Shallowford

Cuscowilla

4 Beds
2 Car Garage
3,324 SQFT
Call For Price

Highlights

  • 6.5-inch engineered oak wood floors
  • Gourmet Kitchen
  • Custom Woodmont® cabinets
  • Personalized Lighting Packages
  • Smart Home Features
  • Energy Efficient Building
Contact Us

Lisa Collins

c. 678.522.2304    o. 404-482-2539

lisacollins@atlantafinehomes.com

Home Brochure

Let’s Talk

Inquire Today


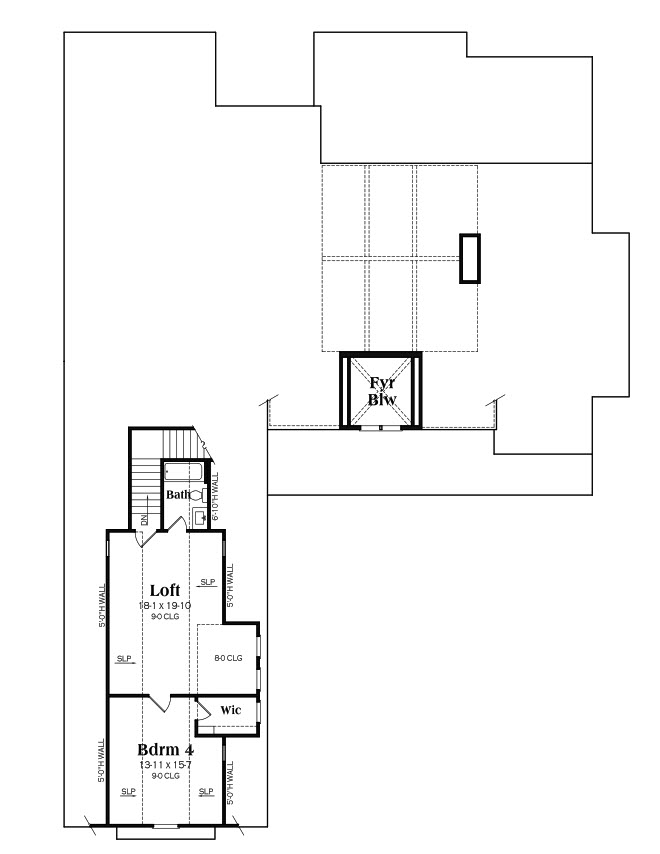
Floor Plans

Shallowford - 2 Story House Plans in GA
Shallowford - 2 Story House Plans in GA

Community Amenities

Golf
Designed by Bill Coore and two-time Masters Champion Ben Crenshaw, Cuscowilla offers expansive views of Lake Oconee, towering Georgia pines and beautiful native grasses.

Pickleball & Tennis
Focus on fun, fitness and friendship at the four Pickleball courts and two har-tru tennis courts in close proximity to the locker rooms and Clubhouse.

Lake Life
Make the most of being at the lake by enjoying all that it has to offered. Largely undisturbed, the natural beauty of the lake itself is not to be overlooked.

Garden Club at The Farm
Enjoy the quaint ambiance of flowers blooming in the community garden, which make a stunning backdrop for photos. Have a green thumb? Join in on the fun of gardening while building community.

Request Information

Take Their Word

Client Testimonials

A wonderful building experience, we would do it again!

Robinson Family
        

Stay in the know

Get in Touch:   Call   Text   Email